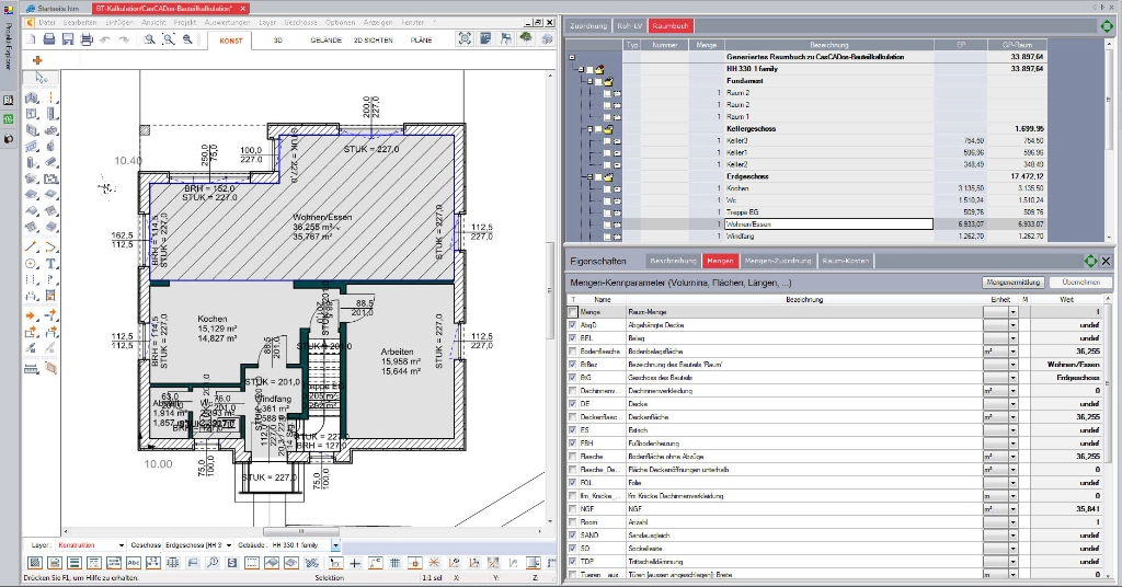
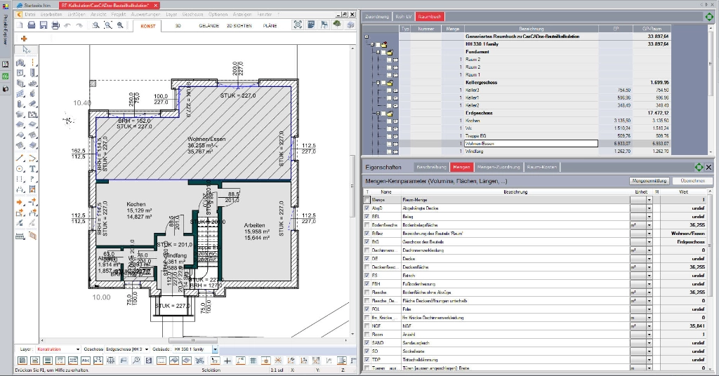
Das intelligente Gebäude- und Raumbuch in der Software AVA.relax ist das optimale Werkzeug zum Erstellen von Raumbüchern sowie der Leistungs- und Kostenübersicht der Gebäude und Räume. Mit diesem Programmteil verwalten Sie das Bauvorhaben über Raumstrukturen. Hierarchische Strukturen gliedern das Gebäude in Einheiten, wie Geschosse, Wohnungen und Räume.
In den Räumen verwalten Sie alle Leistungen in Text und Berechnung. Sie erhalten sowohl eine Menge, als auch eine Kostenübersicht zu den einzelnen Räumen, wie auch zu den Gliederungsstufen. Im Raumbuch können Sie jederzeit die Daten an Word & Excel übergeben. Zusätzlich erhalten Sie aus dem Raumbuch ein Leistungsverzeichnis. Das Modul Raumbuch ist mit allen AVA.relax-Editionen nutzbar. Ein Musterbeispiel als Raumbuch ist bei AVA.relax für Sie bereits hinterlegt, damit Sie das Raumbuch mit dem vorhandenen Beispiel direkt testen können.
Die Highlights in unserem intelligenten Raumbuch
✔ Beliebig zahlreiche und einzeln definierbare Hierarchiestufen, z.B. Haus, Ebene, Wohnung, Raumgruppe, Raum
✔ Freies Festlegen von Mengenkennparametern
✔ Integrierte Mengenermittlung pro Kennparameter
✔ Mengenzuordnung über die Kennparameter oder den Mengenansatz
✔ Zugriff auf Projekt-Mengenparameter
✔ parametrisierbare Mengenzuordnung
✔ Austausch von Positionen per Drag and Drop, die jeweilige Mengenzuordnung bleibt dabei erhalten Berücksichtigung der VOB
✔ Darstellen der Raumkosten über Leistungspositionen
✔ Anzeige der Kosten über die Hierarchiestufen
✔ Ausgabe des Raumbuches an Word & Excel
✔ Automatisches Erstellen von Leistungsverzeichnissen
✔ Kalkulation erstellbar für Schätzung oder Berechnung
✔ Import der Mengenermittlung aus ArchiCAD (optional)
Laden Sie sich alle wichtigen Informationen zum Erstellen von intelligenten Raumbüchern in AVA.relax in der Übersicht als PDF Datei herunter!
